Novogradnja- Oddaja ekskluzivnih pisarniških prostorov

  • Poslovni prostor
  • LJ-mesto
  • Lj. Moste-Polje
  • BTC
19,50 / m2 / mesec
  • Šifra oglasa: 682
  • Velikost: 233.86 m2
  • Tip nepremičnine: Poslovni prostor
  • Nadstropje: 2
  • Energetski razred: A1 (0 - 10 kWh/m2a)
  • Zgrajeno: leta 2024

Oddaja ekskluzivnih pisarniških prostorov

V sodobni poslovni stavbi ob Letališki cesti v Ljubljani oddamo reprezentativne pisarniške prostore z okoljskim certifikatom DGNB, ki zagotavlja visoke standarde trajnostne gradnje in kakovostno delovno okolje.

Pisarniške enote so funkcionalno zasnovane in vključujejo lasten vhod z recepcijo, vogalno pisarno, sejno sobo, govorilnice ter kuhinjsko nišo. Prostori so opremljeni z LED razsvetljavo z možnostjo regulacije, individualno regulacijo ogrevanja, hlajenja in prezračevanja ter nadzorom porabe energije.

V pritličju stavbe se nahajata kavarna in restavracija ter konferenčne dvorane. Uporabnikom sta na voljo tudi terasi v 2. in 6. nadstropju ter zelena streha. Stavba ponuja rekreacijski prostor z garderobami in tuši ter pokrito kolesarnico.

V parkirni hiši je na voljo 214 parkirnih mest za najem, dodatno pa so urejena tudi zunanja parkirna mesta in parkirišča za obiskovalce. Lokacija omogoča enostaven dostop z avtomobilom, javnim prevozom ter drugimi trajnostnimi oblikami mobilnosti.

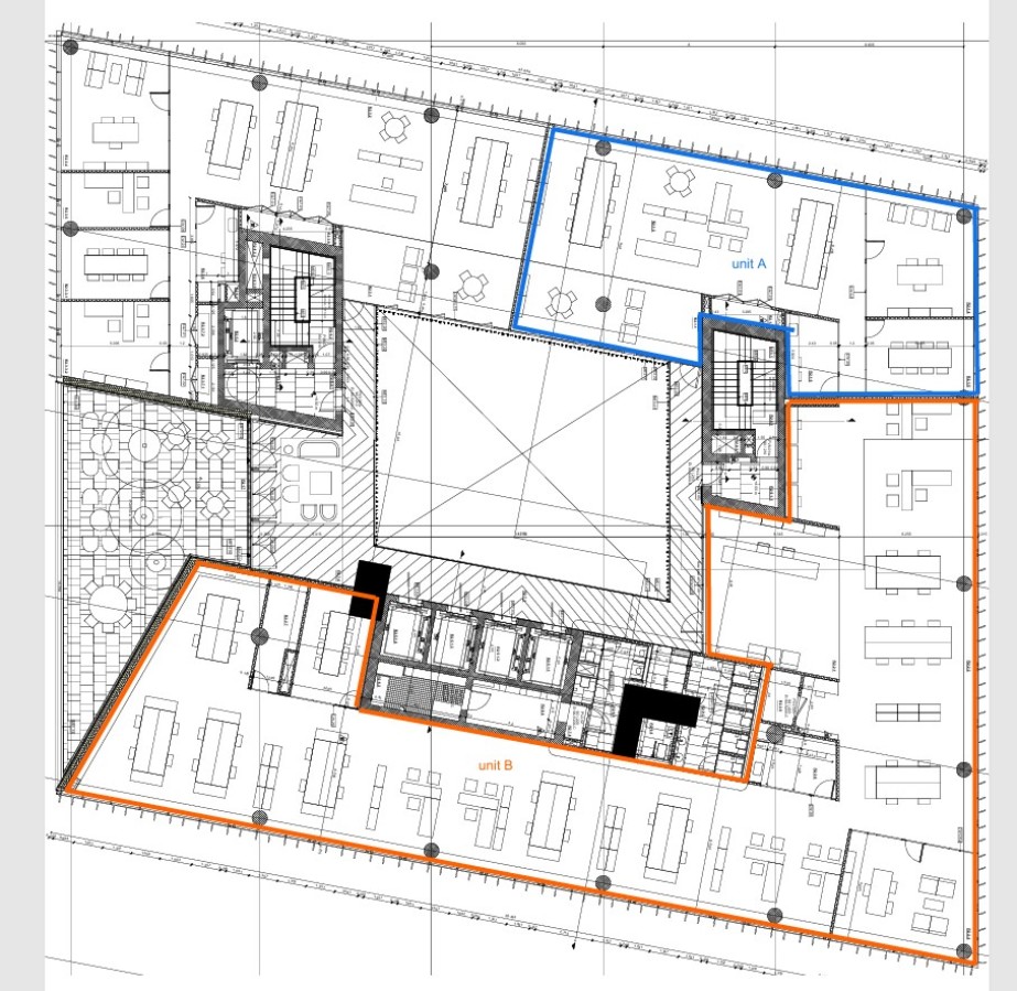
Osnovni podatki: enota A na tlorisu:

  • Neto površina: 190 m²
  • Bruto najemna površina: 233,86m²
  • Letnik stavbe: novogradnja
  • Nadstropje: 2
  • Stanje: zaključeno, takoj vseljivo

Cena

  • Najemnina: 19,5 EUR/ m² +DDV
  • obračun po bruto najemni površini
  • DDV se obračuna skladno z zakonodajo

Parkiranje

  • parkirna mesta v 3 kletnih etažah in na zunanjih površinah
  • možnost električnih polnilnic
  • najem parkirnih mest se obračuna ločeno

Pogoji najema

  • dolgoročni najem
  • obratovalni stroški se obračunavajo ločeno
  • najemnik ima dostop do skupnih prostorov: konferenčne sobe, avditorij (do 100 oseb), sanitarije, tuši, prostori za druženje

Najemnik prevzame del stroškov posredniške provizije v višini enomesečne najemnine plus 22% DDV.   

Stopite v stik z nami in si rezervirajte vam ustrezen termin.

V agenciji Stan nepremičnine vam ponujamo BREZPLAČEN POSVET pri prodaji vaše nepremičnine in nakupu nepremičnine, ki najbolj ustreza vašim željam in življenjskem slogu.

Lastnosti nepremičnine:
  • Iskana lokacija
  • Bližina celotne infrastrukture
  • Terasa
  • Dvigalo
  • Urejeno parkiranje
  • Vrhunska arhitekturna zasnova
Lastnosti lokacije:
  • Avtobusna postaja

Nepremičninski strokovnjak

Izpostavljena ponudba:

Ste nezadovoljni v vašem stanovanju ali hiši? Z veseljem vas popeljemo do zamenjave.

oddajte vaše želje